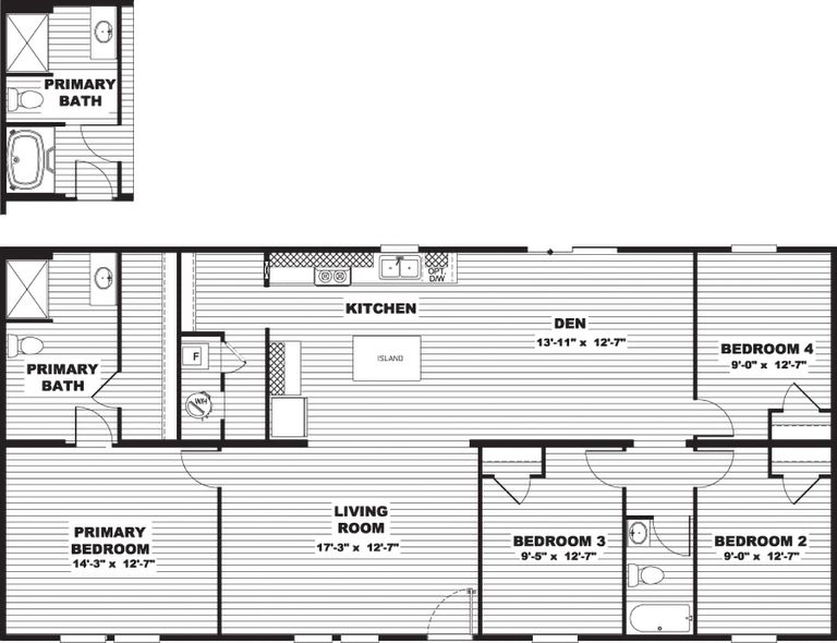
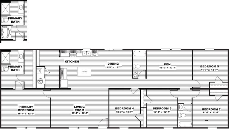
TRU Origin takes the look, standard features, and incredible value of TRU to the next level with enhancements that set a new bar for attainable homeownership.
Attainable New Features. Efficient Availability. Straightforward Floor Plans.
Simple as that.

























